内部障害者の商品加工業務における合理的配慮事例
- 事業所名
- 合理的配慮事例・27244
- 業種
- サービス業
- 従業員数
- 43名
- 職種・従事作業
- 店舗での取り扱い商材の加工
- 障害種別
- 内部障害
- 障害の内容・特性
- 心臓系の疾患があり、作業場所の温度や湿度が高くなると、発作が誘発される。
- その他
- 特例子会社、障害者職業生活相談員
-
募集・採用時の合理的配慮
面接時間について、体調に配慮すること
同社は障害者雇用に特化した特例子会社であり、発足時より支援機関との関係作りに努めている。そのため、同社の採用活動は支援機関を中心に行われており、対象となる障害者(以下、「対象障害者」という)の障害特性についても予め支援機関から充分な説明を受けていた。
対象障害者の障害特性に配慮して、同社では採用に関しては、面接の比重を軽くし、代わりに就労現場での実際の業務作業が可能であるかを慎重に検討した。採用時の過程は以下のとおり。- 支援機関同席の上での顔合わせ
- 職場見学
- 職場での実習
- 本人への意思確認
同社では対象障害者の職場実習受け入れにあたり、作業室の室温を常時20度に設定するなど、室内環境の維持に努め対象障害者の体調に配慮した。
同社が作業環境の維持に努め、慎重に検討した結果、日々の作業量に波はあるが、平均して一定の作業量をこなせることが明確になり、本人が希望して入社となった。その他の配慮
対象障害者採用にあたり、主治医との連携体制の構築に努めた。
採用後の合理的配慮
業務指導や相談に関し、担当者を定めること
対象障害者の業務指導担当は、障害者職業生活相談員資格認定講習修了者で、第2号職場適応援助者(=ジョブコーチ)資格保持者である。同社(特例子会社)発足時より業務部サブリーダーを務める。当社勤務以前にも親会社にて4年間、知的障害者と同一職場の経験があった。
同社では、対象障害者の体調管理に万全の配慮を行っていたが、緊急事態に陥ることもあった。
このような経験から、業務指導担当は対象障害者の主治医や家族にも協力を仰ぎ、支援機関・主治医・家族・同社の綿密な連携体制を構築した。その結果、緊急時の対応については、マニュアルを作成した。なお、緊急時のマニュアルについては、家族・主治医とも内容を共有している。
同社での就労は対象障害者本人の希望であり、就労を継続したい本人の努力と、業務指導担当の長年にわたる細かな配慮の結果、勤務年数を重ねるにつれて緊急事態の発生は徐々に減った。
なお、緊急時の連絡手段は、全て電話で行われた。特別に要した費用 ( )はうち助成金充当部分※
(¥1,800,000 3名を対象として第2号職場適応援助者助成金を受給した。本事例対象者はそのうちの1名である。)※配慮を講じるに当たって、特別に要した費用や助成金の支給を受けた場合の金額を記載しています。
出退勤時刻・休暇・休憩に関し、通院・体調に配慮すること
<障害特性への配慮>
同社では、対象障害者の入社当時は、作業室の温度・湿度管理のために、1年を通して室温を常時20度に設定した上で、以下の配慮を行っていた。- 夏は、冷房のあたる場所へ移動し、扇風機・保冷材等の冷却ツールを利用する。
- 冬は、暖房の当たらない場所へ移動し、就業場所で加湿器等を利用する。
- 梅雨時や秋の台風シーズンには、除湿機を利用する。
上記1~3の配慮は入社4年目の現在でも引続き行われているが、作業室の温度に関しては、現在は一緒に作業する他従業員にあわせ概ね平均的な気温に落ち着いている。(20度から1度ずつ上げ、平均的な気温に少しずつ慣れるように配慮した)
上記の配慮のほかに、同社では以下の配慮も行っている。<その他 体調管理に対する配慮>
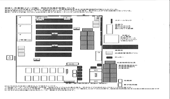
ア:障害特性に配慮した作業椅子の付与
イ:勤務時間内に体調に変化があった場合に、すぐ横になって休める場所の確保
ウ:出勤時、退勤時に一度体を休めることができる場所の確保
(出勤時に一休みしてから勤務に入り、退勤時も一休みしてから帰途につく)<勤務時間>
同社では入社時は時間給のパート社員から開始できるため、勤務時間は対象障害者の希望が受け入れられた。なお、現在は、月~金9:15~16:30の通常勤務。休日は土日祝(夏季休暇・年末年始休暇付与)。1日のスケジュールは、ラインスタッフ共通で以下の通り。
~9:15 出勤
9:15~9:25 朝礼
9:25~10:20 午前業務1
10:20~10:40 10分ずつの休憩(2交替)
※休憩時間は音楽を鳴らして知らせる※
10:40~12:00 午前業務2
12:00~12:55 昼休憩
12:55~14:20 午後業務1
14:20~14:40 10分ずつの休憩(2交替)
14:40~16:30 午後業務2
16:30~ 退勤本人の負担の程度に応じ、業務量等を調整すること
同社は特例子会社であり、従業員の8割強が障害者であるため、1人の1日あたりの作業量には自ずと波が生まれる。同社では、この作業量の波を平均化するために6名程度を一班とする班制度を導入しており、作業目標は個人にではなく、班に課されるシステムを構築した。この相互扶助のシステム導入により、個人に過度の負荷をかけずに、一班で一定の作業量を確保することに成功した。
作業室では一班に一つの作業机が充てられ、一つの作業机を班と称している。班ごとに実際の業務指導担当が1名配置されており、実際の業務に関する指示の一本化が図られるとともに、業務内容への質問にその場で答えられるきめ細かな配慮がなされている。
また、同社では、ラインスタッフが記入する日報を、自己目標を設定するツールとして用いており、1日の業務を明記させることにより、自ずから目標に向かっていく仕組みを構築した。
業務内容により、障害特性上負担がかかる作業については、業務指導担当の指示により他のスタッフが協力をする仕組みが構築されている。本人のプライバシーに配慮した上で、他の労働者に対し、障害の内容や必要な配慮等を説明すること
特例子会社である同社では、従業員のほとんどが障害者である。
したがって同社では入社面接時に、自らの障害について職場のスタッフに伝えることを前提に、同僚のスタッフに、1.何を、2.どこまで伝えて良いかを対象障害者に必ず確認している。
また、同社では様々な障害特性を持ったラインスタッフが働いており、人間関係や人と接する際の距離感には特に気を配っている。同社が特に気をつけている以下の項目については、休憩室に注意書きを張り出している。
ア:身だしなみチェック
イ:人とのお付き合いを良くするヒント
ウ:注意事項
身だしなみチェック

人とのおつき合いを良くするためのヒント

注意事項
その他の配慮
同社は特例子会社であるため、対象障害者のみならず、全ての従業員のために、以下のような配慮がなされている。
- 1班に一人の業務指導担当を配置。
- 業務に関する指示は、業務指導担当から出される(指示の一本化)。
- 名札のストラップの色でスタッフ間の識別ができるよう、情報の視覚化に努めている。
ア:業務指導担当=班長(=赤色)
イ:各ラインを統率する班長候補(=緑色)
ウ:班員(黄色)
エ:業務以外の仕事に携わる管理スタッフ(=こげ茶色) - 作業机上に、作業に必要な道具を入れる箱を設置(収納場所の明確化)
- 一人ひとりの道具に名前を明記(所有者の明確化)
4.と5.を行ったことにより、ラインスタッフ一人ひとりに自分の道具であるという意識が芽生え、道具を大切にするようになり、その結果、道具が行方不明になることがなくなり、作業にスムーズに入れるようになった。 - 名札にバーコードを付与。
- 出退勤時には、名札のバーコードをパソコンで読み取り、タイムカードとして代用(作業の簡略化)
- 休憩場所はラインスタッフの障害特性に合わせて以下の3ヵ所を提供している。
ア:複数でわいわいと休憩したい人には休憩室
イ:少人数でゆったりと話したい人には仕切ったスペース
ウ:1人でゆっくり休みたい人には、個別スペース - ラインスタッフの作業マニュアルは全てオーダーメイド。障害特性にあわせて作成する。
- ラインスタッフが作業時に使用する椅子は、障害特性に応じてそれぞれ選定する。
以上のような配慮を行った上で、ラインスタッフの気分を一新するために - 時々、少しずつ班員の異動を行っている。

作業室(イメージ図) 同社の社風を体現している
障害者への配慮の提供にあたり、障害者と話し合いを行った時期・頻度等の配慮提供の手続きの詳細
様々な障害特性を持つ障害者を雇用してる同社では、様々な配慮が行われている。数ある配慮の中で同社が最も重要視しているのは、採用面接に先立って行われる職場見学・職場実習である。採用を前提とした職場見学・職場実習の過程は以下の通り。
- 職場見学に先立ち、対象障害者に以下の項目を聴き取る。
ア:対象障害者の障害特性
イ:配慮が必要な事柄(対象障害者が・できること、と、・できないことの把握) - 職場見学・職場実習時に以下の項目を説明する。
ア:作業の正確性について
a)スピードよりも丁寧さが重要であること
イ:社会人としての以下の2つのコミュニケーション能力について
a)作業内容についてわからないことを尋ねる質問力の重要性。
b)仕事をする上で、班長や業務指導担当に話しかける関わり力の重要性。
ウ:職業人としての体調管理能力の重要性。
以上の説明を行った上で実際の作業実習に入る。
対象障害者の作業実習には、経験豊富な業務指導担当者が必ずフォローに入る。
<同社の社風>
同社の社風は、代表取締役以外は肩書きの記載が無い名刺に象徴されている。こうした風通しの良いフラットな社風は、同社の作業室にも現れている。
同社では、障害を個人の特性と捉える社風が培われており、障害の有無に関わらず「個人(=その人)を理解する」姿勢に重点が置かれている。そのため同社の業務指導担当者は、常に「人を変えるのではなく、一人ひとりの能力を最大限に活かす」手法を探す努力を続けている。
<長期継続就労へ向けての仕組みづくり>
同社では、対象障害者のやる気を引き出す仕組みとして以下の2つの制度を導入している。
- スキルアップ
ア:班員
各業務を行うスタッフで、6名程度で1班を構成している。
イ:長が行う業務
当日作業の準備・後片付けを行う
作業現場における班員からの細かな質問に答える。
ウ:班長になるには- 自ら手を上げることが第一条件である。
- その後、班長候補生として実際の業務にあたる。
- 必要があれば班長候補生の主治医等にも諮る。
- 最終決定は、同社の判断で行う。
- キャリアアップ
ア:アルバイト社員
入社の際は、時間給のアルバイト社員として採用。有期契約。
イ:チャレンジ社員
1年間の出勤率が90%を超えた社員に、チャレンジ社員への選択権利が付与される。
チャレンジ社員になると契約期間の無い月給制の社員となる。
勤務時間は、6時間・7時間・8時間から選択可能
有給休暇を超えて通院が必要となった場合は、通院に伴う無給休暇が付与される。
ウ:エキスパート社員
ラインの班長以上=チャレンジ社員や一般の社員を指導する立場になった社員
業務指導担当のサポートがほとんど必要無い状態にある障害者
勤務時間は、8時間固定
チャレンジ社員を希望するかどうかは、あくまで対象障害者本人の意思を尊重しており、自動的に移行はしない。
なお、現在のところ出勤率90%をクリアした社員は、ほとんどチャレンジ社員に移行しており、その後も問題なく就労している。
同社ではチャレンジ社員への条件を出勤率90%と明示することにより、対象障害者が自発的に体調管理を行う仕組みづくりに成功している。
対象障害者は、前職で資格が必要な技能職についていた。前職就労時から症状はあったが、当時は障害者手帳は所持しておらず、特別な配慮は受けていなかったという。前職では単独で作業を行うことが多く、体調不良の際にもサポートを受けられず、止む無く離職に至った。
その後、就労支援機関への登録をきっかけに、障害者手帳を取得し、就職活動を再開した。
職場見学、職場実習を通じて、同社への入社が決定した。
「障害者手帳を取得したことで、この会社に就職でき、さまざまなサポートを受けて働き続けられていることが嬉しい」
と語る対象障害者は、真面目な人柄で、就労意欲も高い。
入社以来、自ら積極的に体調管理に気を配るようになり、症状は徐々に落ち着きを見せている。
現在の自分への満足度は60%と語る対象障害者に、次の目標を聞いてみた。
「現在の目標は、チャレンジ社員になり、同じラインで働く同僚と同じ量の業務をこなせるようになること。」
また、同社が今後新たに予定している業務にも、いつかは関わってみたいと、更なるスキルアップも視野に入れている。
対象障害者の意欲的な姿に、業務指導担当は
「周囲に気を使いすぎて、かえって自分の体調を崩してしまうことが多いから、何かあったらすぐに私に話して欲しい」
と、対象障害者の長期就労に向けて、笑顔でアドバイスしていた。
アンケートのお願い
皆さまのお役に立てるホームページにしたいと考えていますので、アンケートへのご協力をお願いします。
なお、事例掲載企業、執筆者等へのお問い合わせや、事例掲載企業の採用情報に関するご質問をいただいても回答できませんので、あらかじめご了承ください。
※アンケートページは、外部サービスとしてMicrosoft社提供のMicrosoft Formsを使用しております。











